Lejlighedplan Hotelkarreen 126@2X
Etageplan Hotelkarreen 126@2X

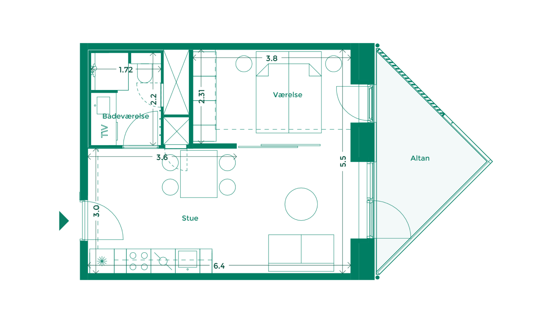
Ejerlejlighed 126

Hotelkarréen

2 værelser
4. sal
51 m2 bolig
7 m2 altan
Solgt
karreerne-eksterior-3

Nyt hjem – mange muligheder

Karréerne er placeret på Aarhus Ø. En bydel i rivende udvikling med et væld af muligheder. Her kommer du til at bo midt i Aarhus med både indkøb, natur, byliv, gode transportforbindelser og Aarhus Midtby inden for kort afstand.

Hotelkarréen er placeret med udsigt til Havnebadet og Aarhus. Her får du god udsigt, godt naboskab og et hyggeligt gårdrum med plads til hygge, leg og afslapning.

Læs mere om byggeriet
karreerne-view7-lejl207-2sal

Fællesskab i Naboskabet

I gårdrummet kan det gode naboskab vokse, når beboerne kan mødes til hygge, spil og fællesskab i gården, mens de kan hente brætspil, sætte en LP på pladespilleren eller hente fodbolde og andre legeredskaber i Naboskabet.

Naboskabet bliver beboernes helt eget ”skab” på cirka 60 m2 fyldt med redskaber, spil, en lille hyggekrog og andre muligheder, der indbyder til masser af aktiviteter og som kan skabe det gode naboskab blandt beboerne.

Læs mere om Naboskabet